Назад к планировкам

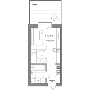
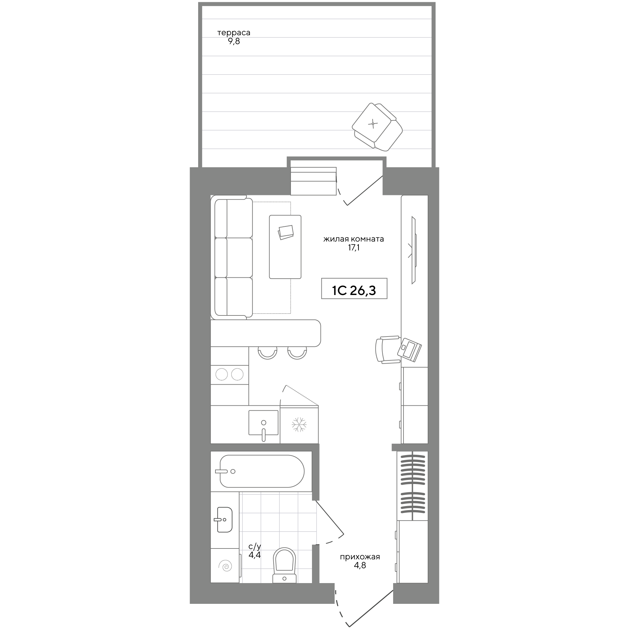
1К студия, 26.27 м², №78

терраса
36/1
Дом
1
Этаж
78
Квартира
II квартал 2025 г.
Срок сдачи
26.27 м2
терраса
Почему семьи выбирают квартиру в «Среде»
Терраса на первом этаже
Гардеробные
На две стороны
Окна в пол
Терраса на первом этаже
Эксклюзивные планировки с просторными террасами 14,4 м², которые выходят во внутренний зеленый двор. Дышите свежим воздухом даже когда готовите обед на плите, читаете книгу или гуляете с ребенком — места хватит для обустройства личной игровой площадки для малыша.
Гардеробные
В каждой квартире продуманы ниши для хранения вещей. В однешке — отдельная гардеробная комната на 5 кв.м. В трешке — место для встроенного шкафа в прихожей и личная гардеробная прямо в спальне.
На две стороны
Трешки с планировкой-распашонкой и окнами на две стороны: и на солнечную, и на теневую. В такой квартире легко дышится — такую планировку можно проветрить за пару минут. Из окон своей квартиры вы сможете наблюдать и за ребенком во внутреннем дворе, и за подъездом.
Окна в пол
Солнечный свет проникает в ваш дом даже в пасмурную погоду через большие французские балконы и панорамные окна. Благодаря этому пространство квартиры визуально увеличивается.
Строительные решения
Кирпичные несущие стены
Кирпичная кладка 380 мм
Утеплитель 150 мм
Внешние и внутренние кирпичные стены обеспечат тепло и шумоизоляцию. Фасады домов покрыты декоративной штукатуркой красивых природных оттенков серого. Французские балконы и окна в пол, чтобы естественный свет проникал в квартиры.
Вариант с ремонтом в ипотеку
Натяжной потолок
Обои
Линолеум
Керамическая платка в санузле
Установка сантехники
Вам не придется возиться с документами и оформлять отдельный кредит — в «Среде» стоимость ремонта можно включить в сумму ипотеки. И ваша квартира готова к переезду: натяжные потолки со светильниками, обои на стенах, линолеум на полу. В санузле работники провели водоснабжение, установили унитаз, ванну и раковину со смесителем, положили керамическую плитку на стенах и полу. Не откладывайте жизнь на потом — переезжайте сразу!

Генплан

Планируемая застройка парка с двумя озерами
Планируемая застройка школы и детского сада
5 мин.
Остановка автобуса
3 мин.
Супермаркет
15 мин.
Торговый центр
10 мин.
Школа
5 мин.
Детский сад
Получите персональное предложение на покупку квартиры в экоквартале «Среда»
Другие квартиры
1 -комнатная, 24.66 м2
Срок сдачи II квартал 2025 г.
балкон
окна в пол
1 -комнатная, 24.66 м2
Срок сдачи II квартал 2025 г.
балкон
окна в пол
1 -комнатная, 26.27 м2
Срок сдачи II квартал 2025 г.
терраса
2 варианта
1 -комнатная, 25.01 м2
Срок сдачи II квартал 2025 г.
балкон
окна в пол
Хотите квартиру мечты?
Приезжайте на экскурсию!
Записаться на экскурсию
Срок сдачи 1 кв. 2025 г.
Ипотека от 6%
Заказать звонок
Оставьте заявку и менеджер свяжется с вами